服務熱線
021-33617555
全國服務熱線:
021-33617555
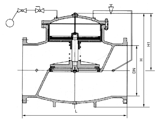
SJ100X遙控浮球閥是兼具多種功能的水力操作式閥門。要安裝于水池或高架水塔的進水口處,當水位達到設定的高度時,主閥由浮球導閥控制關閉進水口停止供水;當水位下降后,主閥由浮球開關控制打開進水口向水池注水,實現自動補水。液位控制精確,不受水壓干擾;100X隔膜式遙控浮球閥可隨水地池的高度及使用空間任意位置安裝,維護、調試、檢查方便、密封可靠、使用壽命長。隔膜式閥門性能可靠。強度高、動作靈活適用于450MM口徑以下的管道。DN500MM口徑以上的建議使用活塞式。
SJ100X遙控浮球閥:
結構及用途Structure and purpose
該閥主要安裝于水池或水塔的進口處,當水位達到設定高度時,主閥由浮球導閥控制關閉進水口停止供水、當水位下降后,主閥由浮球導閥開關控制打開進水口向水池或水塔供水,實現自動補水。
該閥液位控制精度高,不受水壓干擾,可任意安裝位置,密封性能可靠,安裝、維護、調試、檢查方便、使用壽命長(浮球導閥可與主閥分離安裝)



